Montevideo, Uruguay
2023-2024
1400 m²
Research Project
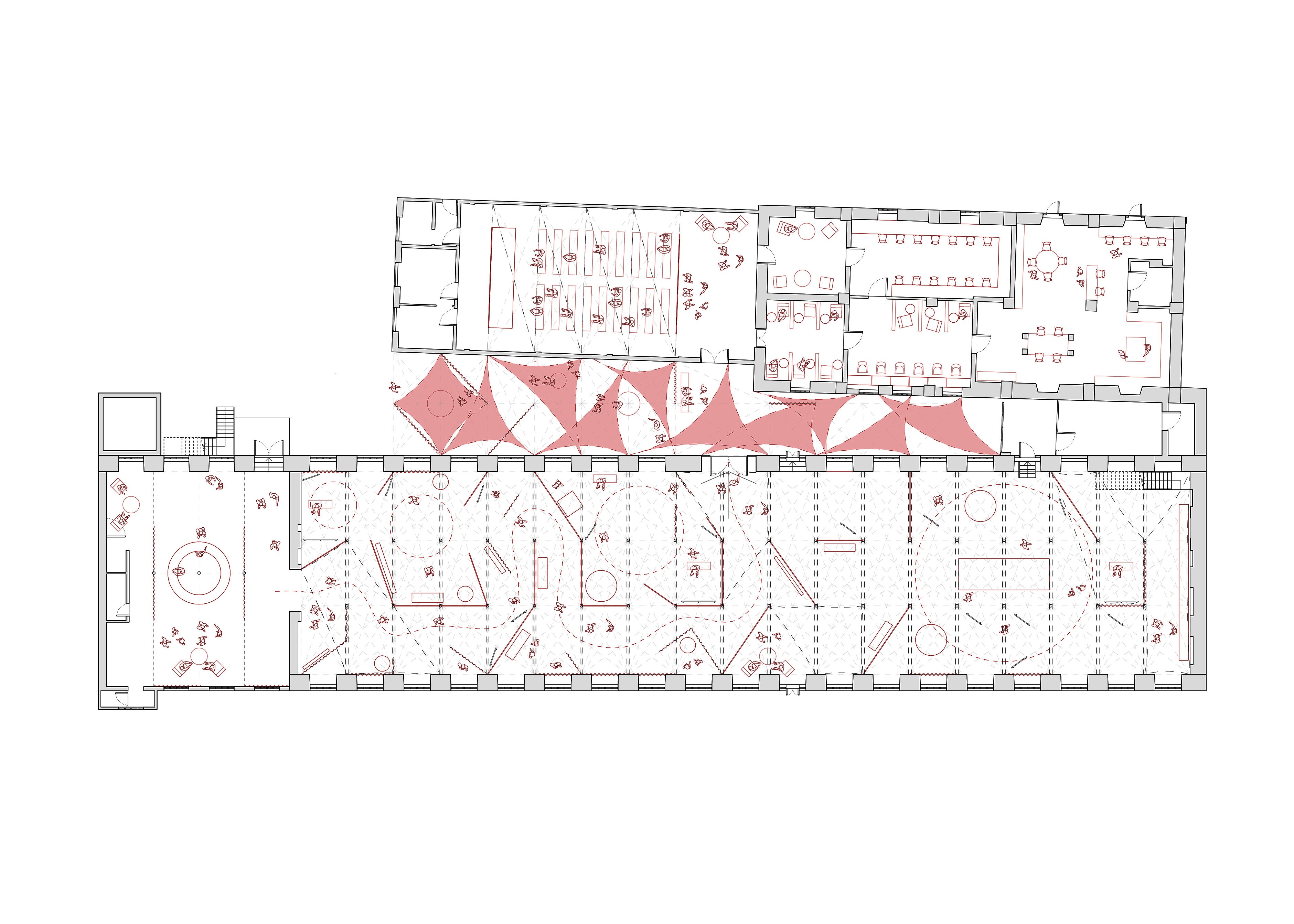
This project designs tensioned structures that preserve the building’s integrity, using metal rings anchored to columns and adapting to exhibition needs. Translucent Valentino red fabrics create a sensory environment linking textile tradition with architectural innovation. The modular, flexible design transforms each area into a dynamic, sustainable space, fostering creativity and collaboration, and turning the building into a creative hub for textile professionals. It celebrates Italian textile history with a modern approach.


Montevideo, Uruguay

2023-2024
1400 m²
Research Project
This project designs tensioned structures that preserve the building’s integrity, using metal rings anchored to columns and adapting to exhibition needs. Translucent Valentino red fabrics create a sensory environment linking textile tradition with architectural innovation. The modular, flexible design transforms each area into a dynamic, sustainable space, fostering creativity and collaboration, and turning the building into a creative hub for textile professionals. It celebrates Italian textile history with a modern approach.

